Добро пожаловать на http://vipplan.ru

Випплан Новочебоксарск - это тысячи проектов домов в нашем каталоге!

Вы всегда сможете найти для себя проект дома вашей мечты! Даже если этого не случилось, мы готовы в любую минуту предложить проект индивидуального дома.

Забыли пароль?
Вы еще не регистрировались?

Перейдите по ссылке ниже на страницу регистрации.

Регистрация...

Внимание!!!

В проектную документацию могут быть внесены изменения любой сложности, в соответствии в Вашими пожеланиями!

Полезные статьи

Типы и разновидности кровли

Кровля состоит из сплошного настила, стяжки и обрешетки, поддерживающих стропила и несколько слоев изоляции, призванных уберечь кровельное пространство от негативного воздействия пара и влаги....

Системы утепления фасада

Основные тепловые потери происходят через стены, фундамент и крышу. Уменьшить их можно с помощью утеплителя, создав внутри дома оптимальный для жизни климат, с достаточно ровным температурным режимом и низкой влажностью....

Проекты домов и коттеджей > Каталог проектов домов > Проект дома с сауной и гаражом Vg1013

Проект дома с сауной и гаражом Vg1013

Проект дома с сауной и гаражом
Зарегистрируйтесь

Проект № Vg1013


Техническое описание
Общая площадь: 282 м2
Жилая площадь: 149 м2
Высота здания: 10 м
Размеры дома: 15м×25м
Кол-во комнат: 7
Цокольный этаж: нет
Гараж: нет
Мансарда: нет

Kонструкция
Фундамент: Свайно-ростверковый
Перекрытия: Ж/б плиты
Материал стен: Керамоблок

Архитектурный раздел
Конструктивный раздел
Инженерный раздел
АР+КР - 72 000 (Со скидкой 20%)
АР+КР+ИР - 170 700 (Со скидкой 50%)
Проект индивидуального двухэтажного жилого дома с размерами здания 15,28 х 25,12 м. Наружная отделка здания – облицовочный кирпич. Фундамент – свайно-ростверковый (буронабивной). Наружные стены – керамические блоки с воздушным зазором и отделкой облицовочным кирпичом Внутренние стены - керамические блоки. Перегородки – керамические блоки. Пол первого этажа- пол по грунту. Межэтажное перекрытие – ж/б плиты.Чердачное перекрытие - деревянные балки. Крыша металлочерепица, гибкая черепица Кровля – четырехскатая. Окна - металлопластиковые, выполненные по индивидуальному заказу.
Генплан застройки участка / Паспорт проекта 7000 руб / 10000 руб
Инженерный раздел (полный) 98700 руб (141000 руб)
Смета на строительство 70500 руб
Теплотехнический расчет материалов стен Бесплатно
Стоимость проекта со незначительнми изменениями 82950 руб
Стоимость проекта со средними изменениями* 104100 руб
Стоимость проекта со значительными изменениями** 109700 руб

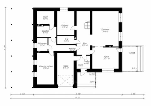
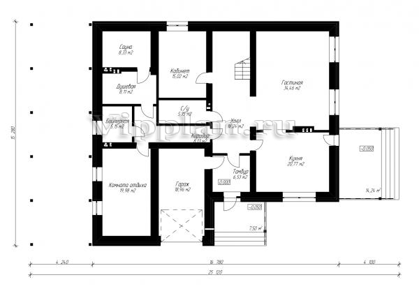
План первого этажа


Тамбур — 6,53 м2
Холл — 18,24 м2
Гостиная — 34,46 м2
Кухня — 20,77 м2
Коридор — 8,13 м2
Кабинет — 15,02 м2
С/у — 5,35 м2
Сауна — 8,33 м2
Душевая — 8,11 м2
Бойлерная — 5,15 м2
Комната — 19,98 м2
Гараж — 18,96 м2

Проект дома с сауной и гаражом

Проект дома с сауной и гаражом

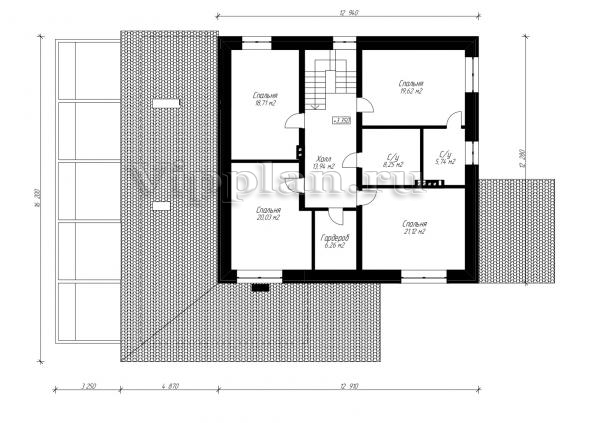
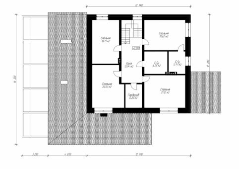
План второго этажа


Холл — 13,94 м2
Спальня — 18,71 м2
Спальня — 20,03 м2
Спальня — 19,62 м2
Спальня — 21,12 м2
Гардероб — 6,26 м2
С/у — 8,25 м2
С/у — 5,74 м2
Проект дома с сауной и гаражом Проект дома с сауной и гаражом Проект дома с сауной и гаражом Проект дома с сауной и гаражом

Модификации проектов

Внесение изменений и привязка к участку строительства

В любой из проектов от компании VIPplan - Новочебоксарск по вашему желанию могут быть внесены изменения в материалы стен, материалы наружной отделки дома, а также будет произведена адаптация проекта под конкретный регион строительства (с учетом грунтов региона, геологических особенностей вашего участка и местных климатических условий) - БЕСПЛАТНО !!! (кроме проектов со скидкой и проектов наших партнеров).

Любой из проектов, размещенных на сайте novocheboksarsk.vipplan.ru мы можем выполнить из требуемых вам строительных материалов: ячеистый бетон (газобетон, пеноблок), керамоблок, кирпич, шлакоблок, бетонный блок, дерево (брус, клееный брус), каркасная технология (деревянный каркас, металлокаркас (ЛСТК)).

Фасад дома и его наружную отделку так же возможно выполнить с применением различных облицовочных материалов: структурной штукатурки, (с утеплителем и без), сайдингом (пластиковый или металлосайдинг), фиброплитами, кирпича.

 
6 Избранные
проекты

Доставка проектов по России: Москва (Московская область), Санкт-Петербург (Ленинградская область), Краснодар, Ростов-на-Дону, Ставрополь, Сочи, Волгоград, Новосибирск, Белгород, Брянск, Воронеж, Саратов, Хабаровск, Астрахань, Нальчик, Владикавказ, Екатеринбург, Тюмень, Самара, Нижний Новгород, Казань, Пермь, Уфа, Челябинск, Красноярск, Ханты-Мансийск, Иркутск, Курган, Оренбург, Омск, Томск, Барнаул, Новокузнецк, Кемерово, Абакан, Чита, Якутск, Южно-Сахалинск, Петропавловск-Камчатский и страны ближнего зарубежья: Белоруссия, Украина, Казахстан