Добро пожаловать на http://vipplan.ru

Випплан Новочебоксарск - это тысячи проектов домов в нашем каталоге!

Вы всегда сможете найти для себя проект дома вашей мечты! Даже если этого не случилось, мы готовы в любую минуту предложить проект индивидуального дома.

Забыли пароль?
Вы еще не регистрировались?

Перейдите по ссылке ниже на страницу регистрации.

Регистрация...

Внимание!!!

В проектную документацию могут быть внесены изменения любой сложности, в соответствии в Вашими пожеланиями!

Полезные статьи

Дом это прекрасное вложение

Современный рынок недвижимости диктует свои правила. Цены на землю и недвижимость в Новочебоксарске постоянно растут и вынуждают по-другому смотреть на покупку собственного дома. Не только со стороны получения удобного, благоустроенного жилья, но и со стороны капитализации и инвестировании своих средств...

Проект дома

Строительство дома начинается с подготовительного этапа, основной частью которого является проект. Разработка дизайнерского проекта сопровождается оформлением документов после выбора участка....

Проекты домов и коттеджей > Каталог проектов домов > Одноэтажный дом с подвалом и террасами Vg2654

Одноэтажный дом с подвалом и террасами Vg2654

Одноэтажный дом с подвалом и террасами
Зарегистрируйтесь

Проект № Vg2654


Техническое описание
Общая площадь: 140.81 м2
Жилая площадь: 67.56 м2
Размеры дома: 13.12м×13.72м
Кол-во комнат: 4
Цокольный этаж: есть
Гараж: нет
Мансарда: нет

Kонструкция
Фундамент: ленточный
Перекрытия: монолитная плита, балки

Архитектурный раздел
Конструктивный раздел
АР+КР - 52 000 (Со скидкой 20%)
Одноэтажный дом с подвалом и террасами с размерами здания 13,12 x 13,72 м. Фундамент - ленточный монолитный ж/б. Наружные стены - керамзитобетонный блок, минераловатные плиты, фасадная штукатурка. Внутренние стены - керамзитобетонный блок. Перегородки - керамзитобетонный блок. Пол подвала - пол по грунту. Пол 1 этажа - пол по монолитному ж/б перекрытию. Чердачное перекрытие - деревянные балки перекрытия. Крыша - двускатная. Кровля - профлист. Окна - металлопластиковые.
Генплан застройки участка / Паспорт проекта 7000 руб / 10000 руб
Инженерный раздел (полный) 70500 руб
Смета на строительство 35250 руб
Теплотехнический расчет материалов стен Бесплатно
Стоимость проекта со незначительнми изменениями 61450 руб
Стоимость проекта со средними изменениями* 72100 руб
Стоимость проекта со значительными изменениями** 74900 руб

План цокольного этажа


Бойлерная - 20,71 м2
Кладовая - 22,27 м2

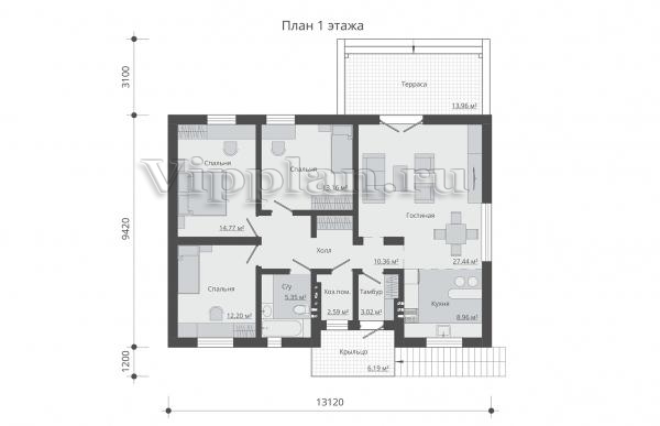
План первого этажа


Тамбур - 3,02 м2
Холл - 10,36 м2
Подсобка - 2,59 м2
Кухня - 8,96 м2
Гостиная - 27,44 м2
С/у - 5,35 м2
Спальня - 12,20 м2
Спальня - 14,77 м2
Спальня - 13,16 м2
Одноэтажный дом с подвалом и террасами Одноэтажный дом с подвалом и террасами Одноэтажный дом с подвалом и террасами Одноэтажный дом с подвалом и террасами

Модификации проектов

Внесение изменений и привязка к участку строительства

В любой из проектов от компании VIPplan - Новочебоксарск по вашему желанию могут быть внесены изменения в материалы стен, материалы наружной отделки дома, а также будет произведена адаптация проекта под конкретный регион строительства (с учетом грунтов региона, геологических особенностей вашего участка и местных климатических условий) - БЕСПЛАТНО !!! (кроме проектов со скидкой и проектов наших партнеров).

Любой из проектов, размещенных на сайте novocheboksarsk.vipplan.ru мы можем выполнить из требуемых вам строительных материалов: ячеистый бетон (газобетон, пеноблок), керамоблок, кирпич, шлакоблок, бетонный блок, дерево (брус, клееный брус), каркасная технология (деревянный каркас, металлокаркас (ЛСТК)).

Фасад дома и его наружную отделку так же возможно выполнить с применением различных облицовочных материалов: структурной штукатурки, (с утеплителем и без), сайдингом (пластиковый или металлосайдинг), фиброплитами, кирпича.

 
6 Избранные
проекты

Доставка проектов по России: Москва (Московская область), Санкт-Петербург (Ленинградская область), Краснодар, Ростов-на-Дону, Ставрополь, Сочи, Волгоград, Новосибирск, Белгород, Брянск, Воронеж, Саратов, Хабаровск, Астрахань, Нальчик, Владикавказ, Екатеринбург, Тюмень, Самара, Нижний Новгород, Казань, Пермь, Уфа, Челябинск, Красноярск, Ханты-Мансийск, Иркутск, Курган, Оренбург, Омск, Томск, Барнаул, Новокузнецк, Кемерово, Абакан, Чита, Якутск, Южно-Сахалинск, Петропавловск-Камчатский и страны ближнего зарубежья: Белоруссия, Украина, Казахстан